このページを印刷する
- 価格
-
1億9,000万円
- 間取
-
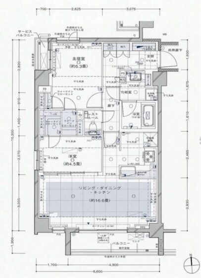
2LDK
| 所在地 | 東京都目黒区 |
|---|---|
| 建物名 | ピアース目黒青葉台 |
| 交通 |
|
| 築年月 | 2021年2月(築5年) | 新築/中古 | 中古 |
|---|---|---|---|
| 面積 | 計測方式 | 壁芯 | |
| バルコニー | 向き | ||
| 建物階数 | 地上 4階 | 所在階 | |
| 部屋番号/区画番号 | --- | 総戸数/総区画数 | --- |
| 建物構造 | RC | ||
| 管理形態 | 全部委託管理人日勤 | ||
| 間取内容 | |||
| 駐車場 | 取引態様 | 専属 | |
| 引渡/入居時期 | 相談 | 現況 | |
| 地目 | 宅地 | 用途地域 | |
| 都市計画 | 市街化区域 | 地勢 | 平坦 |
| 周辺環境 | |||
| 設備・条件 |
|
||
| URL | https://suumo.jp/ms/chuko/tokyo/sc_meguro/nc_78344797/ | ||
| 物件番号 | 3737 | ||
| 情報登録日 | 2025年11月23日 | 情報更新日 | 2025年11月23日 |
物件掲載内容と現況に相違がある場合は現況を優先といたします。










